ППК ГРАД
Главная
О нас
Инжиниринг:
• Технологические объекты ВиВ
• Сетевые и линейные объекты
• СТО и автоцентры
• Объекты промышленного комплекса
Архитектурное бюро:
• Архитектура
• Дизайн интерьеров
• Благоустройство территории
Контакты
+7 (343)-269-89-79
О нас
Инжиниринг
Архитектурное бюро
Контакты
ППК ГРАД
ППК ГРАД
Главная
О нас
Инжиниринг
Технологические объекты ВиВ
Сетевые и линейные объекты
СТО и автоцентры
Объекты промышленного комплекса
Архитектурное бюро
Архитектура
Дизайн интерьеров
Благоустройство территории
Контакты
+7 (343)-269-89-79
Получи бесплатную консультацию!
Спасибо! Данные успешно отправлены.
Отправить заявку
Наши специалисты ответят на все ваши вопросы
83432698979
Нажимая на кнопку, вы даете согласие на обработку персональных данных и соглашаетесь
c политикой конфиденциальности
Получи бесплатную консультацию!
Спасибо! Данные успешно отправлены.
Отправить заявку
Наши специалисты ответят на все ваши вопросы
Нажимая на кнопку, вы даете согласие на обработку персональных данных и соглашаетесь
c политикой конфиденциальности
На главную
Назад к портфолио
Задача
Об объекте
Стадия проектирования
Задача
Об объекте
Стадия проектирования
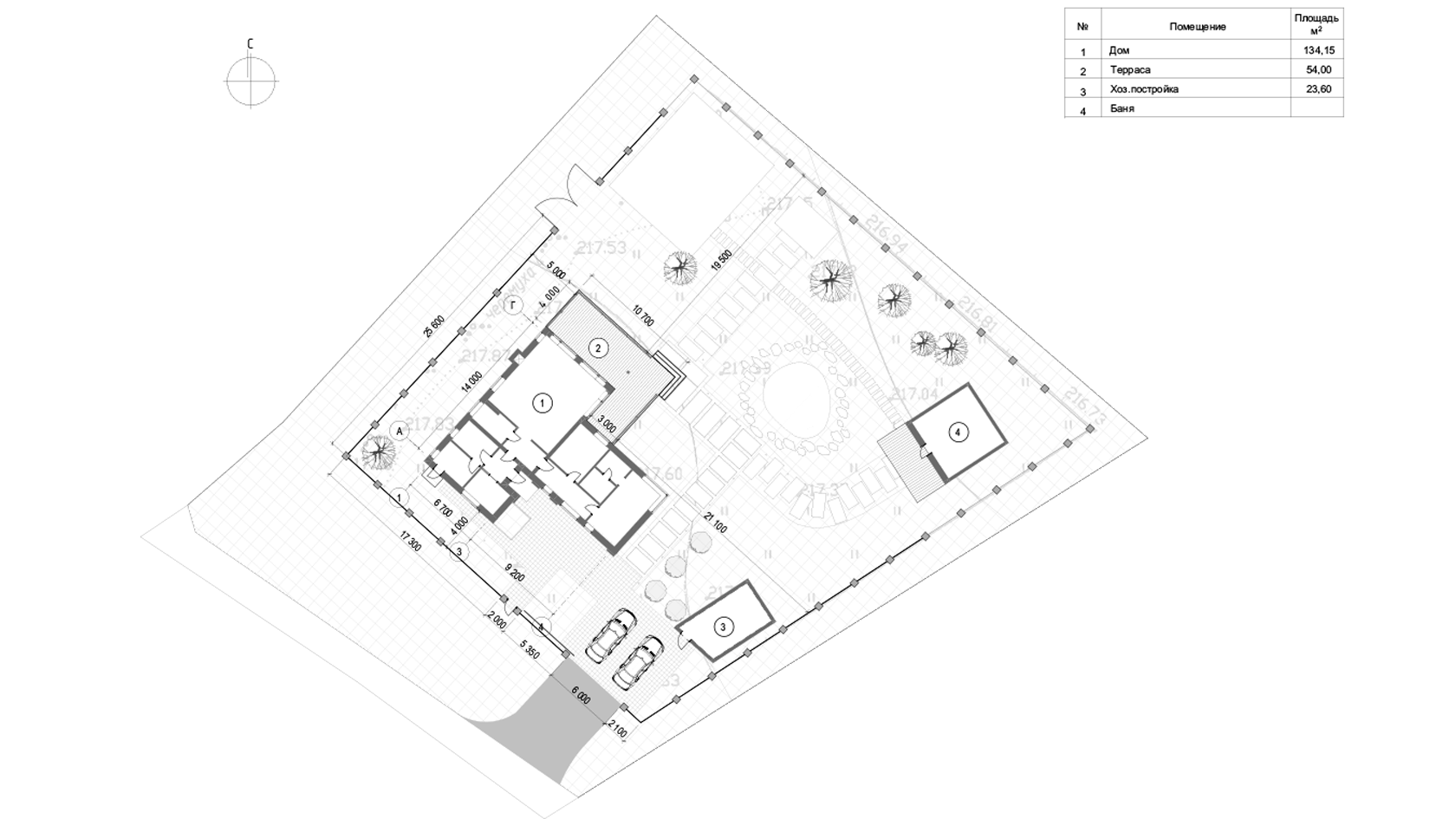
Запроектировать одноэтажный жилой дом.
Тип:
жилой дом.
Место:
Свердловская область, с. Кадниково, ул. Тактовая.
Общая площадь:
188,15 кв.м.
Этажность:
1 этаж.
Габариты в плане:
15,9 на 14 м.
Эскизный проект, инженерные изыскания, рабочий проект.
Генеральный план участка