Получи бесплатную консультацию!
Наши специалисты ответят на все ваши вопросы
83432698979
Нажимая на кнопку, вы даете согласие на обработку персональных данных и соглашаетесь
c политикой конфиденциальности
Получи бесплатную консультацию!
Наши специалисты ответят на все ваши вопросы
Нажимая на кнопку, вы даете согласие на обработку персональных данных и соглашаетесь
c политикой конфиденциальности
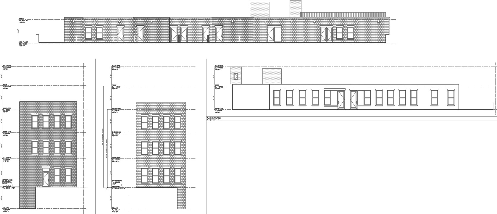
Реконструировать дом в центральной части района Бруклин.
Тип: многоквартирный жилой дом.
Место: Brooklyn, New York, 398 Kings Highway.
Общая площадь: 3100 кв. м.
Этажность: 4 этажа.
Габариты в плане: 21 × 42 м.
Эскизный проект.
В ходе проекта по желанию заказчика необходимо было надстроить 4-ый этаж. При этом он не должен просматриваться с центральных улиц.
Вживление в среду
Фасады
Фото до реконструкции